
FI PROJEKTOWANIE WNĘTRZ ILONA FIGIEL
PROJEKTOWANIE WNĘTRZ I ARANŻACJA TWOJEGO DOMU
Nasza pracownia projektowa świadczy kompleksowe usługi architekta wnętrz. Świadczymy usługi projektowania i aranżacji wnętrz apartamentów, domów, mieszkań, wnętrz komercyjnych, home stagning i projekty stoisk wystawowych. W naszych projektach najważniejsze jest zrozumienie potrzeb klienta przy zachowaniu najwyższego poziomu funkcjonalności i estetyki. Realizujemy projekty w takich miastach jak : Warszawa, Starachowice, Radom, Kielce, Kraków, Ostrowiec Świętokrzyski, istnieje również możliwość projektu online na terenie całej Polski.
Zobacz przykładowe projekty

Spokój i elegancja w salonie
Elegancki, luksusowy salon w klasycznym stylu, wypełniony jasnymi kolorami.

,,Pomarańczowe sofy"
Projekt salonu z kuchnią z pomarańczowymi kanapami, płytkami lastryko oraz złotymi akcentami.

Nowoczesna Elegancja na 60 m2 w Łodzi
Przestrzeń została starannie zaplanowana, aby maksymalnie wykorzystać dostępną powierzchnię, jednocześnie tworząc przytulne i stylowe otoczenie.

Pokoje dziecięce
Pomieszczenia dla maluchów w których króluje bajkowa atmosfera.
Czym się zajmuję?

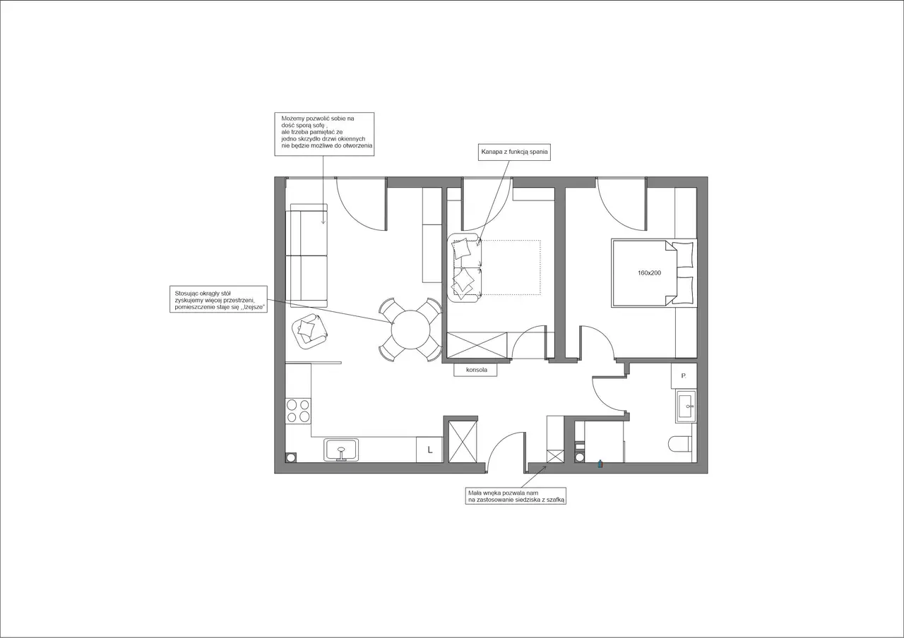
UKŁAD FUNKCJONALNY
Rzut 2D z rozplanowaniem funkcjonalności wnętrza. Zmiany ścian działowych, zabudowy meblowe i dodatki.

WIZUALIZACJE PROJEKTU
Wirtualne zdjęcia i spacer po Twoim wnętrzu.

DOKUMENTACJA TECHNICZNA
Rysunki techniczne - czyli instrukcja dla wykonawcy do zrealizowania projektu. Dokumentacja zawiera m.in. układ ścian ( zabudowy GK), elektrykę, podłączenia wod-kan, rysunki mebli na zamówienie i inne elementy potrzebne do przeprowadzenia remontu.

LISTA ZAKUPOWA
Zestawienie materiałów i elementów zastosowanych w projekcie.
Kim jestem?

Ilona Figiel
Projektant i dekorator wnętrz
Jestem doświadczonym, dyplomowanym architektem wnętrz, który z pasją podejmuje się każdego zadania. Dzięki wieloletniemu doświadczeniu i autentycznemu zamiłowaniu do pracy, każde wnętrze, które tworzę, jest pełne indywidualnego charakteru. Uważam, że każda osoba jest wyjątkowa, dlatego też moim celem jest stworzenie przestrzeni, która odzwierciedla jej duszę i spełnia wszystkie jej potrzeby.
Skontaktuj się
Potrzebujesz porady? Chętnie pomogę.
